Every family deserves a home that works for their lifestyle. Whether you're planning a new build or searching for your next house, 3 bedroom 2 bath plans offer the sweet spot between space and efficiency. These layouts have become incredibly popular because they strike that perfect balance between having enough rooms for everyone while keeping things manageable.
When it comes to home design, few layouts capture the hearts of families quite like the classic 3 bedroom 2 bath floor plan. It's not just about having three bedrooms and two bathrooms – it's about creating a space where life happens naturally. Picture this: morning chaos in the kitchen, kids getting ready for school, and someone needing privacy for a quiet moment. A well-designed 3 bedroom 2 bath layout makes all of this possible without feeling cramped or chaotic.
These homes aren't just about square footage – they're about flow, function, and flexibility. You'll find that many of these designs prioritize open living spaces, thoughtful room placement, and smart storage solutions. The beauty lies in how they adapt to different family sizes and lifestyles, whether you're a young couple starting out, a growing family, or even empty nesters looking for something cozy yet spacious.
The Classic 3 Bedroom 2 Bath Layout
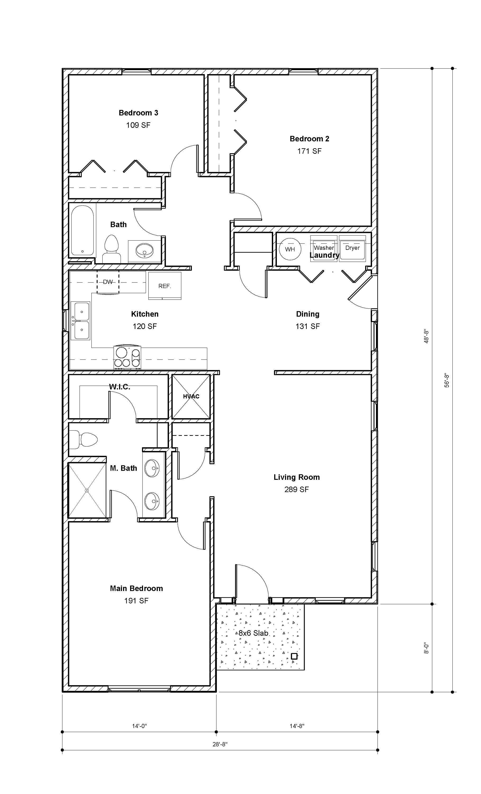
The traditional 3 bedroom 2 bath floor plan typically features a central hallway or open living area with bedrooms arranged strategically around it. This setup allows for easy navigation and creates distinct zones within the home.
Key characteristics include:
Many of these plans feature a master suite that stands apart from the other bedrooms, offering a retreat-like feel. The master bedroom usually includes its own bathroom and walk-in closet, providing that special touch of luxury.

Some designers prefer a more open concept approach, where the kitchen flows directly into the living area. This creates a seamless environment for entertaining guests or simply enjoying family time together. The challenge lies in maintaining privacy for bedrooms while still keeping the space feeling connected.
Smart Room Placement Strategies
How you position those three bedrooms can make or break your daily routine. Think about how your family moves through the house each day – when do you wake up? Where do you eat dinner? How much privacy do you need?
Here are some smart approaches to room placement:
In many 3 bedroom 2 bath homes, you'll notice that the master suite gets prime location – often with views of the backyard or garden. This isn't just for aesthetics. It's about creating a peaceful sanctuary where you can decompress after a long day.
Sometimes, the bathroom placement matters more than you think. Having one bathroom near the bedrooms and another near the common areas helps distribute traffic and reduces congestion during busy mornings. Some families prefer a split-bath configuration where the master bathroom has a separate entrance from the other bathrooms.
The most successful layouts often incorporate natural light and cross-ventilation. Windows that face east or west provide different lighting experiences throughout the day, which can significantly impact how comfortable and welcoming your home feels.

Open Concept vs Traditional Layouts
One of the biggest debates in home design today revolves around open concept versus traditional layouts. Both approaches have their merits, especially when designing 3 bedroom 2 bath homes.
Open concept designs are all about flow and connection. They tend to:
Traditional layouts keep distinct zones but still offer good connectivity. They may include:
The choice often depends on your lifestyle. If you love hosting parties and want everyone to be involved in conversations, an open concept might be ideal. But if you prefer more defined spaces for work, reading, or quiet activities, a traditional layout could serve you better.
Many modern 3 bedroom 2 bath plans blend elements of both concepts. For example, you might have an open kitchen and living area with a separate dining room, or perhaps a breakfast nook that connects to the kitchen but maintains a sense of separation from the main living spaces.
Consider how you actually live. Do you cook and entertain frequently? Do you need quiet spaces for studying or working? Answering these questions will help determine which approach suits your needs best.

Storage Solutions and Organization
A well-planned 3 bedroom 2 bath home understands that organization is everything. Nobody wants to live in a cluttered space, especially when you're trying to maintain a peaceful atmosphere for the whole family.
Effective storage strategies include:
Many homeowners struggle with finding space for seasonal items, hobbies, or extra furniture. That's why clever storage solutions are so important. Walk-in closets with multiple sections for different clothing types can transform how you organize your wardrobe. Similarly, a dedicated space for books, crafts, or sports equipment keeps these items from taking over common areas.
Consider the height of your ceilings too. High ceilings offer opportunities for built-in shelving or attic storage. Low ceilings might require different approaches, such as wall-mounted shelves or flat storage units.
Some modern 3 bedroom 2 bath plans include storage in unexpected places. For instance, a hallway might feature a built-in bench with storage underneath, or a study area might incorporate hidden cabinets behind sliding doors. These details make a huge difference in how functional and tidy your home feels every day.
Bathroom Design Considerations

Bathrooms in 3 bedroom 2 bath homes deserve special attention because they're used by multiple family members throughout the day. The key is designing spaces that are both practical and beautiful.
Important considerations include:
A split-bath configuration is becoming increasingly popular. One bathroom handles morning routines for the whole family, while the master bathroom offers more luxurious amenities. This arrangement helps prevent traffic jams in the bathrooms during busy times.
Modern trends show that people are looking for bathrooms that feel spa-like yet practical. Features like rainfall showers, heated floors, and smart mirrors are now common in high-end designs. However, even budget-conscious families can achieve attractive results with good fixtures and thoughtful layout choices.
Don't overlook the importance of proper ventilation. Without it, bathrooms can become foggy, moldy, or develop unpleasant odors. Good exhaust fans and natural ventilation options help maintain a fresh and clean environment.
The size of your bathrooms matters too. Even a small 3 bedroom 2 bath home can accommodate two full bathrooms if you're strategic about layout and use of space efficiently.
Cost-Effective Design Tips

Building or renovating a 3 bedroom 2 bath home doesn't have to break the bank. Smart decisions made early in the process can save significant money without sacrificing quality or style.
Money-saving strategies include:
One effective approach is to focus on the most used areas first. Kitchen and bathrooms typically see the most wear and tear, so investing in quality materials there pays dividends in longevity. Meanwhile, less-frequently-used spaces like hallways or storage areas can utilize more affordable alternatives.
Many families find success in choosing standard sizes and layouts rather than custom designs. Standard dimensions mean lower material costs and faster construction times. Custom elements can be added later if needed, allowing for gradual improvements.
Another wise move is to plan for future needs. Adding electrical outlets in strategic locations, including extra switches for lighting control, can prevent expensive rewiring later. Similarly, ensuring adequate space for future renovations or modifications helps avoid costly surprises down the road.
Consider working with a designer who understands both aesthetics and budget constraints. They can guide you toward solutions that meet your needs while staying within financial limits.
The 3 bedroom 2 bath floor plan continues to be a favorite among families because it strikes that perfect balance between practicality and comfort. Whether you're building a new home or renovating an existing one, these layouts offer proven solutions for modern living.
Remember that the best design is one that fits your actual lifestyle, not just what looks good in magazines. Think about how you want to live, what activities you enjoy, and how your family moves through space daily. The right 3 bedroom 2 bath plan will support all of these needs while creating a home that brings joy to everyone who lives there.
Whether you choose an open concept or traditional layout, prioritize good room placement, smart storage solutions, and functional bathrooms. These elements work together to create a home that serves you well for years to come. With thoughtful planning and attention to detail, your 3 bedroom 2 bath home can become the foundation for countless happy memories.