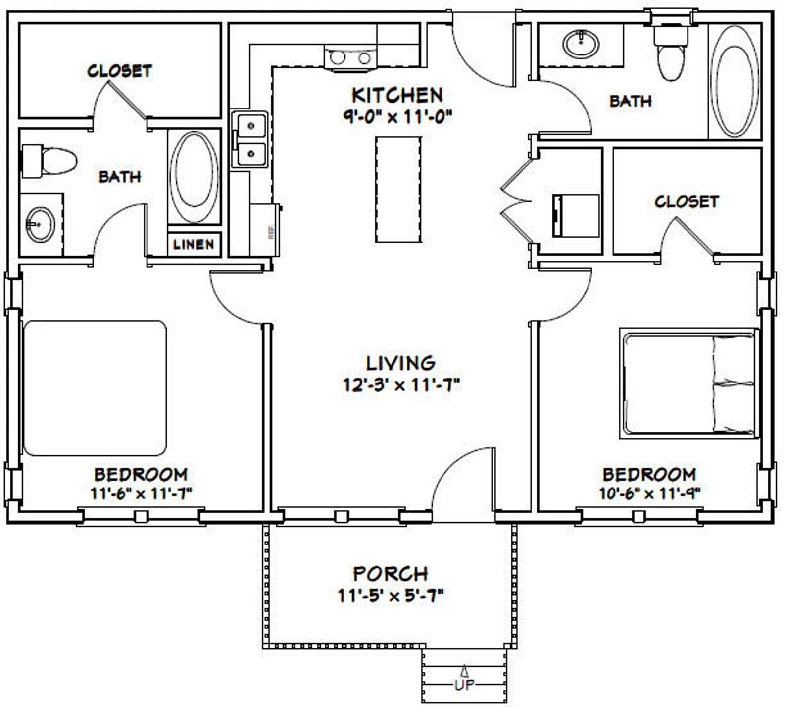
Whether you're planning a new build, remodeling, or simply trying to organize your current home, understanding how to lay out a 2 bedroom 2 bathroom house can make all the difference. These layouts aren't just about square footage – they're about flow, function, and making every inch work for you.
When you think about the perfect home layout, the 2 bedroom 2 bathroom house often comes to mind. It's that sweet spot between spaciousness and manageability, offering enough room for family life while remaining practical for most budgets. But what makes a good floor plan? What elements truly matter when designing or choosing one? Let's explore the key considerations that make a 2BR 2BA layout work well for real families.
Essential Features of Effective 2BR 2BA Floor Plans
A smartly designed 2 bedroom 2 bathroom house starts with knowing what features really matter. The kitchen should flow naturally into living areas, allowing families to cook while staying connected to their space. Think about how people move through your home daily – where do they go first? Where do they gather?
Key elements include:
These aren't just nice-to-haves – they're fundamental to making a home feel comfortable and functional.
Common Layout Styles and Their Pros and Cons
There are several popular approaches to organizing a 2 bedroom 2 bathroom house. Each style offers different advantages depending on your lifestyle.

The traditional layout puts both bedrooms on one side, with bathrooms and main living areas on the opposite side. This creates clear separation between private and public zones. However, it might mean longer walks between rooms.
Another approach places one bedroom and bathroom on each side of the home, with shared living spaces in the center. This works great for couples or families with children who prefer to be close together.
Consider also the L-shaped design, where the home extends in a curve. This can provide better views and more natural light, though it may require more careful planning for efficient traffic flow.
Each layout has its own personality and can be adapted to fit your specific needs.
Strategic Placement of Bedrooms and Bathrooms
Where you put your bedrooms and bathrooms can make or break your home's usability. The master bedroom should ideally be positioned away from high-traffic areas. This means placing it on the back or side of the house rather than right next to the front door.
Bathrooms benefit from being centrally located if possible, but consider the size of your family. If you have young kids, placing one bathroom near the bedrooms can reduce morning chaos.
For a 2BR 2BA house, having one bathroom upstairs and one downstairs can be ideal. It allows for different routines – maybe parents get ready in the morning while kids use the downstairs bathroom.

Remember, the bathroom closest to the bedrooms should be the one used for early morning routines. The second bathroom can serve guests or evening needs.
Maximizing Natural Light and Airflow
Natural lighting and fresh air make any home feel more alive. In a 2 bedroom 2 bathroom house, this becomes even more important because you want to avoid feeling cramped or dark.
Large windows in the main living area create an immediate sense of openness. Consider placing them on the side that receives the most sunlight during the day.
The kitchen benefits enormously from being near a window – not just for light but for views of the outside world. It's a small touch that can make cooking feel less like a chore and more like a pleasure.
Don't forget about cross-ventilation. If you can position windows on opposite sides of the house, you'll encourage air to flow through, reducing humidity and keeping things fresh.
This isn't just about aesthetics – it's about creating a healthier environment for everyone who lives there.
Storage Solutions That Work With Your Lifestyle

Every home needs good storage, especially a 2BR 2BA house where space is precious. The key is planning ahead for what you actually need to store.
Built-in closets are always a smart choice. They maximize vertical space and keep clothes organized without taking up floor area.
In the bathrooms, consider medicine cabinets, linen storage, and shelves above the toilet. These small additions add significant functionality.
Kitchen storage deserves special attention too. Pull-out pantries, overhead racks, and drawer organizers can transform a cluttered space into something manageable.
Think about seasonal items – winter coats, holiday decorations, summer gear. You need storage solutions that can handle changes in your lifestyle throughout the year.
A good rule of thumb: if you can't see where something goes in your home, it probably won't stay there.
Practical Tips for Customizing Your Layout
While standard floor plans offer starting points, customizing yours can make it uniquely yours. Here are some ways to personalize your 2BR 2BA space:

The best layouts are those that reflect how people actually live, not just how architects imagine they should.
Consider how many people will use the space regularly. Will you be hosting friends? Do you need quiet areas for studying or relaxing?
Remember that even small changes can have big impacts. A few extra inches of hallway width can make moving furniture much easier. A slightly larger kitchen island can accommodate more people during meal prep. These details matter more than you might expect.
Budget-Friendly Approaches to Better Floor Planning
You don't need a massive budget to create a smart floor plan. Sometimes it's about smart decisions rather than expensive upgrades.
Start with the basics: prioritize the areas you use most. If you cook a lot, invest in good kitchen space. If you entertain, focus on the living areas.
Repurposing existing spaces can save money and still improve function. A former closet might become a pantry. A spare bedroom could become a home office.
Don't overlook simple fixes like painting walls in lighter colors to make spaces feel bigger. Adding mirrors strategically can also enhance perception of space.

Sometimes the most impactful changes come from rearranging furniture rather than buying new pieces. A few strategic moves can completely change how a room feels and functions.
Future-Proofing Your Home Layout
Planning for future changes helps ensure your 2 bedroom 2 bathroom house remains useful as your life evolves.
Consider if you might want to add a third bedroom later. Some layouts allow for easy conversion of a large closet or unused space into a bedroom.
If you're thinking about aging in place, make sure your layout supports mobility. Wide doorways, grab bars in bathrooms, and accessible flooring can make a huge difference.
Flexible spaces are key. A room that can serve as a guest bedroom today might be a home gym tomorrow.
Also think about technology needs. Will you need a dedicated space for a home office? How about charging stations for electronics?
Building flexibility into your layout now can save you major headaches later. It's about anticipating needs rather than just meeting current demands.
Designing a 2 bedroom 2 bathroom house isn't just about creating pretty pictures on paper – it's about crafting a space that supports your everyday life. From strategic bedroom placement to thoughtful storage solutions, every element plays a role in making your home both beautiful and functional.
Remember, there's no single 'right' way to arrange your space. What matters most is how well it meets your actual needs. Whether you're building from scratch or renovating an existing home, take time to consider how you and your family will use each area.
The best floor plans aren't just about square footage – they're about flow, comfort, and creating a place where you want to spend time. With thoughtful planning, your 2BR 2BA house can be more than just a place to live – it can be a true reflection of who you are and how you choose to live.