Imagine walking into your home and feeling completely at ease. Picture a space where every room serves a purpose, where the flow feels natural, and where comfort meets functionality. That's exactly what great 2 bedroom 2 bathroom house plans aim to deliver. These layouts aren't just about square footage – they're about creating spaces that truly work for families, couples, or anyone looking for a well-designed home.
When it comes to home planning, few layouts capture the sweet spot between practicality and comfort quite like 2 bedroom 2 bathroom designs. Whether you're building a new home or remodeling an existing space, these floor plans offer something special. They're versatile enough to suit various lifestyles while remaining efficient in their use of space. Think about it – two bedrooms provide privacy for family members or guests, while two bathrooms mean less waiting and more convenience. This balance makes them incredibly popular among buyers and builders alike. But what really sets apart a good 2 bedroom 2 bathroom plan from a mediocre one? Let's explore the essential elements that make these designs work so well.

Understanding the Basics of 2 Bedroom 2 Bathroom Layouts
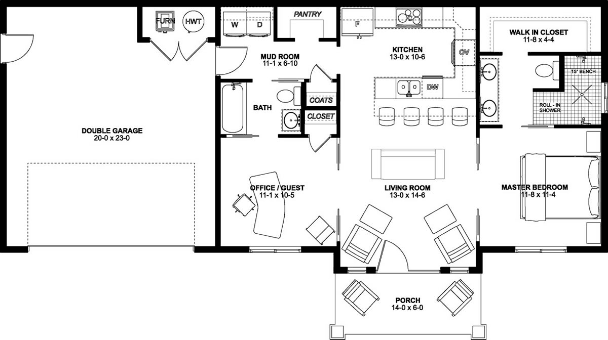
At their core, 2 bedroom 2 bathroom plans are designed around maximizing efficiency and comfort. The typical layout includes two separate sleeping areas, each with its own bathroom access, plus a shared living space. This configuration works especially well for families with children or couples who appreciate some personal space. What makes these plans so appealing is how they distribute the essential elements of daily life. The bedrooms usually sit on opposite sides of the house, allowing for quiet mornings and peaceful evenings. Meanwhile, the bathrooms are positioned strategically to serve both bedrooms without creating long hallways. You might find one bathroom near the master bedroom and another closer to the secondary bedroom. This arrangement reduces congestion during busy morning routines. Many architects and designers prefer this setup because it naturally creates zones within the home. One area for rest, another for relaxation, and a third for socializing. It's almost like having different personalities within the same space.

Popular Design Styles and Configurations
There are several ways to arrange a 2 bedroom 2 bathroom home, each with distinct advantages. Traditional layouts often feature a central hallway connecting all rooms, creating a classic flow. Some homes incorporate open-concept living areas where the kitchen, dining, and living spaces blend together. Others prioritize privacy by placing bedrooms on one side of the house and common areas on the other. The most common approach involves positioning the master bedroom with its own bathroom on one side, while the second bedroom shares a bathroom with the primary bathroom. This setup allows for flexibility in usage patterns. For instance, if someone needs to use the bathroom early in the morning, they won't disturb others. Another popular variation places the bathrooms in the center of the home, creating a hub for activity. This design works particularly well when the main living areas are located toward the front of the house. Some modern interpretations even feature walk-in closets in both bedrooms, adding extra storage and style. The key is matching the configuration to your lifestyle and preferences. Do you want privacy or openness? More storage or more space? These questions help determine which style fits best.

Key Considerations for Family Living
For families, 2 bedroom 2 bathroom plans offer practical benefits that extend beyond simple layout. When children are involved, having separate bedrooms means more peace and quiet for everyone. Parents can sleep while kids play, and teenagers can have their own space. This arrangement also supports healthy family dynamics by providing individual retreats. The bathroom configuration becomes crucial when multiple people need to use facilities simultaneously. Having two bathrooms prevents the morning chaos that many families experience. Imagine getting ready for school or work with everyone rushing to get dressed. With two bathrooms, that stress melts away. The master bedroom often includes features like a private entrance or a small sitting area. This gives parents a place to relax after a long day. The secondary bedroom can serve as a guest room, home office, or play area depending on the family's needs. Storage solutions become important too. Closets in both bedrooms allow families to organize clothing, books, and other essentials efficiently. These details make the difference between a house and a home.

Space Optimization Tips for Maximum Efficiency
Smart design choices can transform a modest 2 bedroom 2 bathroom home into a spacious haven. Multi-functional furniture plays a big role in achieving this. Think about using a storage ottoman instead of a traditional coffee table. Or consider a dining table that folds down to save space. These clever solutions maximize utility without sacrificing aesthetics. Vertical storage is another powerful tool. Tall cabinets that reach the ceiling can hold plenty of items while keeping the floor space clear. Built-in shelving along walls creates storage without taking up valuable room. Consider the kitchen layout carefully. A galley-style kitchen saves space while keeping food prep areas functional. The dining area should connect easily to the living space for seamless entertaining. Light colors and mirrors reflect natural light, making smaller rooms feel bigger. Strategic placement of windows brings in daylight and improves the overall atmosphere. Every inch matters, so plan carefully where you put everything. The kitchen island can double as a breakfast bar, and the living room can serve as a home office. These flexible arrangements give families more options for how they use their space. Sometimes, the smallest changes make the biggest impact.

Budget-Friendly Design Strategies
Building or renovating a 2 bedroom 2 bathroom home doesn't have to break the bank. Smart choices can keep costs manageable while still delivering quality results. Start with the basics – focus on essential elements first. Choose durable materials that won't need frequent replacement. Quality hardwood floors, for example, last longer than carpet and require less maintenance. Consider doing some of the finishing work yourself. Painting, installing fixtures, and choosing tile patterns can be DIY projects that save money. Look for sales and discounts on major appliances and building supplies. Many retailers offer seasonal promotions that can reduce costs significantly. Prioritize the most used areas of your home. If you spend more time in the kitchen, invest in better countertops and cabinets there. The bedrooms don't necessarily need expensive upgrades if the bathrooms are well-designed. Sometimes, a fresh coat of paint or updated lighting can refresh an entire space. Don't overlook the importance of energy-efficient features. LED lights, programmable thermostats, and efficient appliances may cost more upfront but save money over time. These investments pay dividends through lower utility bills and increased property value. Remember, the goal is to create a beautiful, functional home without financial strain.
Modern Trends in 2 Bedroom 2 Bathroom Homes
Today's 2 bedroom 2 bathroom designs reflect changing lifestyles and priorities. Open floor plans continue to gain popularity, merging the kitchen, dining, and living areas into cohesive spaces. This trend allows for better interaction between family members and guests. Smart home technology integration is becoming standard rather than optional. Voice-controlled lighting, automated thermostats, and security systems enhance convenience and safety. Sustainable building practices are also influencing design decisions. Eco-friendly materials, solar panels, and water conservation features appeal to environmentally conscious homeowners. The emphasis on outdoor living spaces has grown dramatically. Patios, decks, and screened porches extend usable space and create connections with nature. Indoor-outdoor transitions have become seamless, with large sliding doors and consistent flooring. Minimalist aesthetics favor clean lines, neutral colors, and uncluttered spaces. These trends reflect our desire for simpler, more intentional living. Modern homes also prioritize flexibility. Spaces that can adapt to different needs – like converting a guest room into a home gym – are increasingly valuable. Technology integration extends beyond convenience to support health and wellness goals. Smart mirrors, air purification systems, and wellness-focused layouts show how homes are evolving to meet contemporary needs. These developments indicate that 2 bedroom 2 bathroom homes will continue to adapt to modern demands while maintaining their fundamental appeal.
The journey to finding the right 2 bedroom 2 bathroom plan is ultimately about creating a space that reflects your values and lifestyle. These designs offer the perfect middle ground between practicality and comfort, making them ideal for a wide range of situations. Whether you're starting from scratch or updating an existing home, thoughtful planning ensures your investment pays off in daily satisfaction. Remember that good design isn't just about appearances – it's about creating environments where people can live, work, and thrive. The key lies in balancing function with beauty, ensuring every element serves a purpose while contributing to overall harmony. As trends evolve and personal needs change, these layouts remain flexible enough to accommodate growth and adaptation. The right 2 bedroom 2 bathroom plan isn't just a blueprint – it's a foundation for creating lasting memories and comfortable living. So take your time, consider your priorities, and let the design process guide you toward your ideal home. After all, a well-planned space becomes more than just a house – it becomes a true sanctuary.